Jonathan Hallett MCIAT

Chartered Architectural Technologist - Office Tel: 01202 881945

Projects
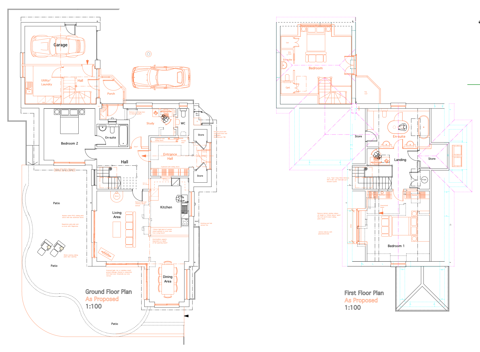
Please find a small selection of recent small domestic projects. I am happy to provide specific examples of my designs and experience to show something more comparable to your own proposals, together with Client details for reference purposes.
Lilliput
Lilliput 2
Lilliput 3
Giddylake
Giddylake 2
giddy3.jpeg
Worth Matravers
P1000733.jpg
P1000731.jpg